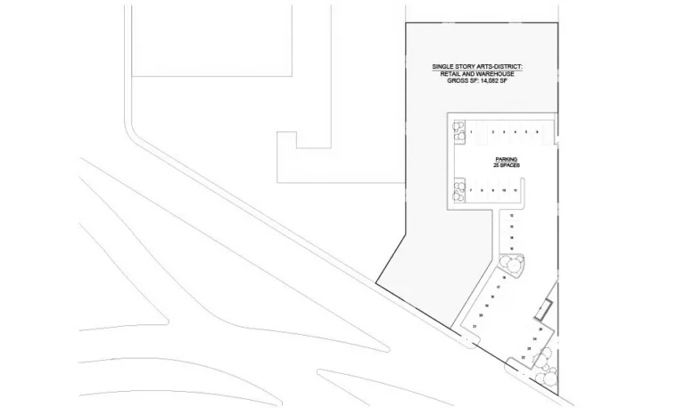
This mixed-use project is located along Morena Blvd. and has a lot size of 26,412 square feet, falling under the CC-3-7 zoning designation. This zone allows the adoption of the RM-4-10 zone’s residential density metrics, doubling the maximum allowed dwelling units. The exemplary schematic design DAI has provided contains three configurations:
A By Right development project complies with existing zoning and building code regulations. With these parameters set, configuration L contains 1-3 bedrooms, ranging from 518 to 832 square feet, totaling 33 dwelling units.
This development can be planned under an RM-4-10 density overlay. This residential dwelling zone permits a maximum density of 1 dwelling unit for every 400 square feet of lot area. Configuration 2 also includes 1-3 bedrooms ranging from 518 to 832 square feet, totaling 66 dwelling units.
Complete Communities Housing Solution provides an F.A.R. density bonus incentive for development that supports low- to moderate-income households. This high-density configuration consists of 145 dwelling units, ranging from 2- to 3-bedroom units, with floor areas of 635 to 770 square feet.
If the project were to become a high-rise, the iconic subtractive architecture of current design trends would be a strong option.

















