Mixed-Use On University

Market Rate Design

This development is located along University Avenue on a 14,374-square-foot lot under the C-F-D-MU zoning designation. The City of La Mesa’s “Mixed-Use Urban” General Plan allows for up to 40 dwelling units per acre, supporting a blend of residential and commercial uses.

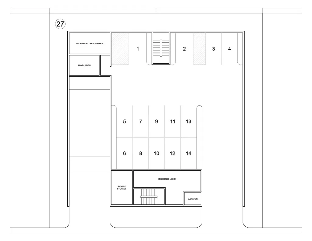
The ground floor includes the residential lobby, storage, utilities, and 30 required parking spaces (26 residential and 4 commercial), with the potential to add 14–17 additional spaces.
The second floor provides leasable commercial space, along with lobby access and support functions such as a mailroom.

The third and fourth floors contain eight diverse unit types ranging from 550 to 1,055 square feet, including some two-story units.