Towers On Glacier

Market Rate Design

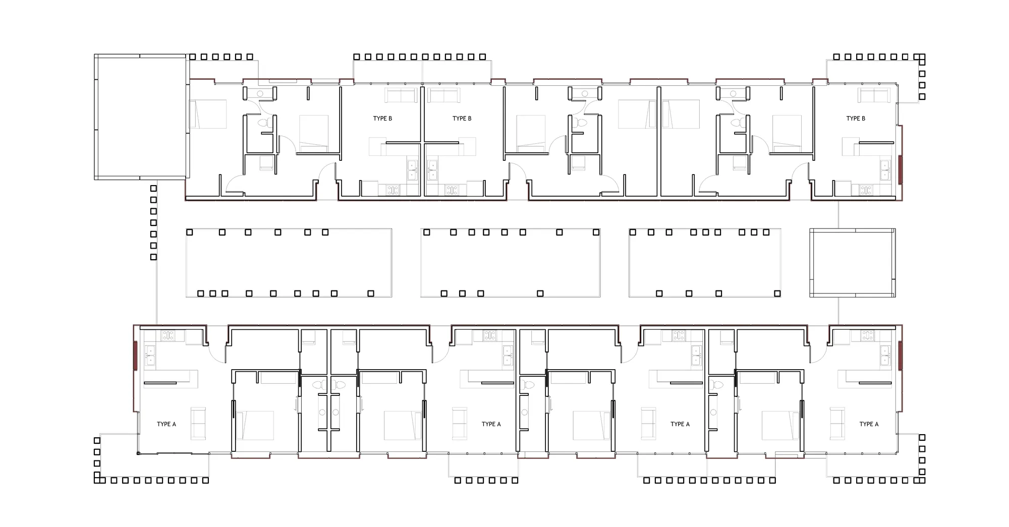
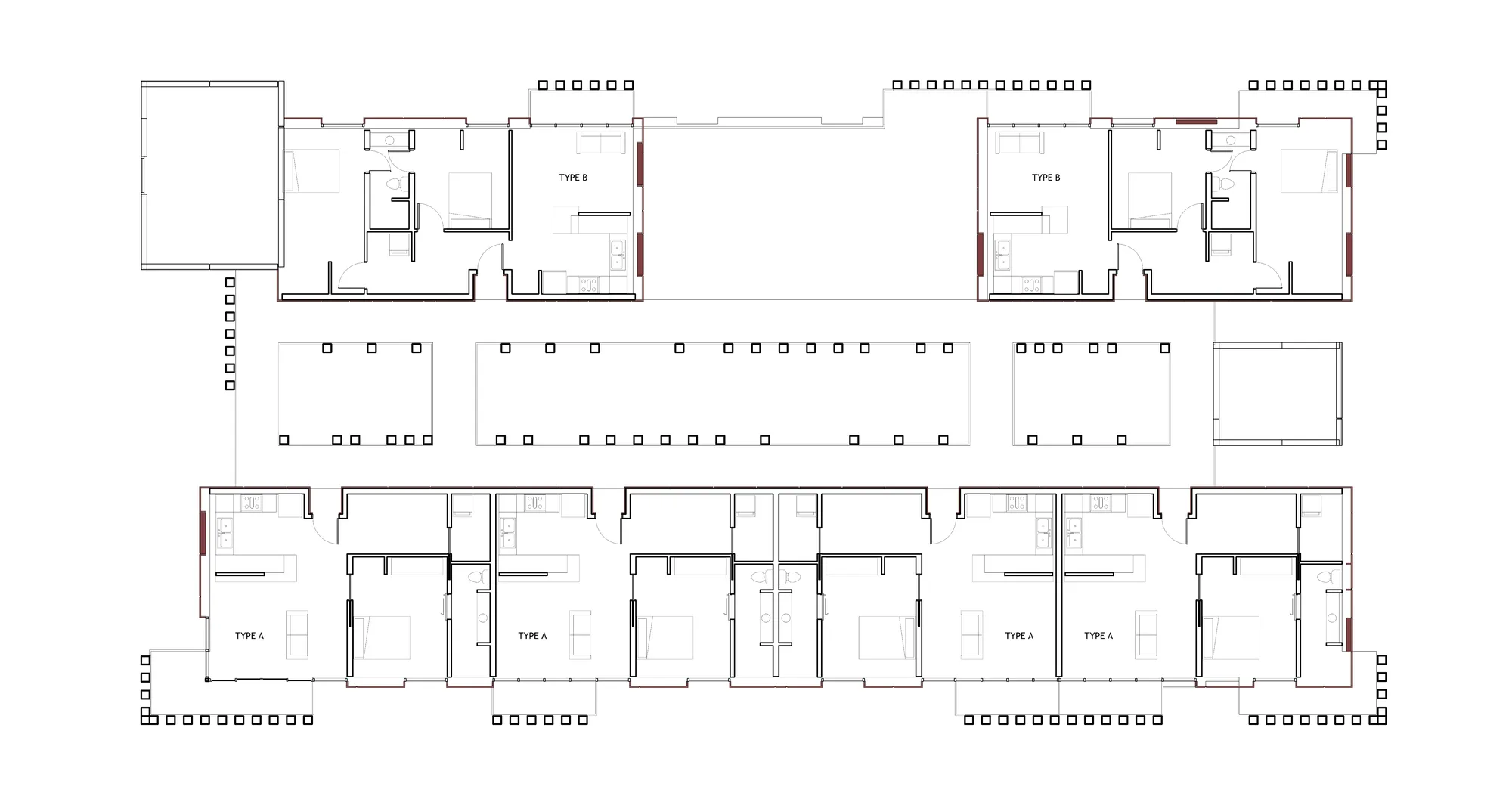
Towers on Glacier is a mid-rise, mixed-use development located in the Grantville area that plays on mass, density, and dynamism. The parcel area for this project is 10,500 square feet with the CC-3-6 zoning designation. This project falls within the “Complete Community Housing Solutions” overlay zone, which allows an additional F.A.R. of 4.0.

Unit types range from 1 to 3 beds with a minimum of 725 sf and a maximum of 1,270 sf. There are approximately 47 spaces.

Exterior building assemblies include a natural terracotta panel wall, 12×12 accent timber, button-form smooth concrete wall panels, and an aluminum-glazed curtain wall. The building falls under Construction Types I and II.